475 000$
Maison à étages à vendre
- 4
- 2
- 1543 PC
Description
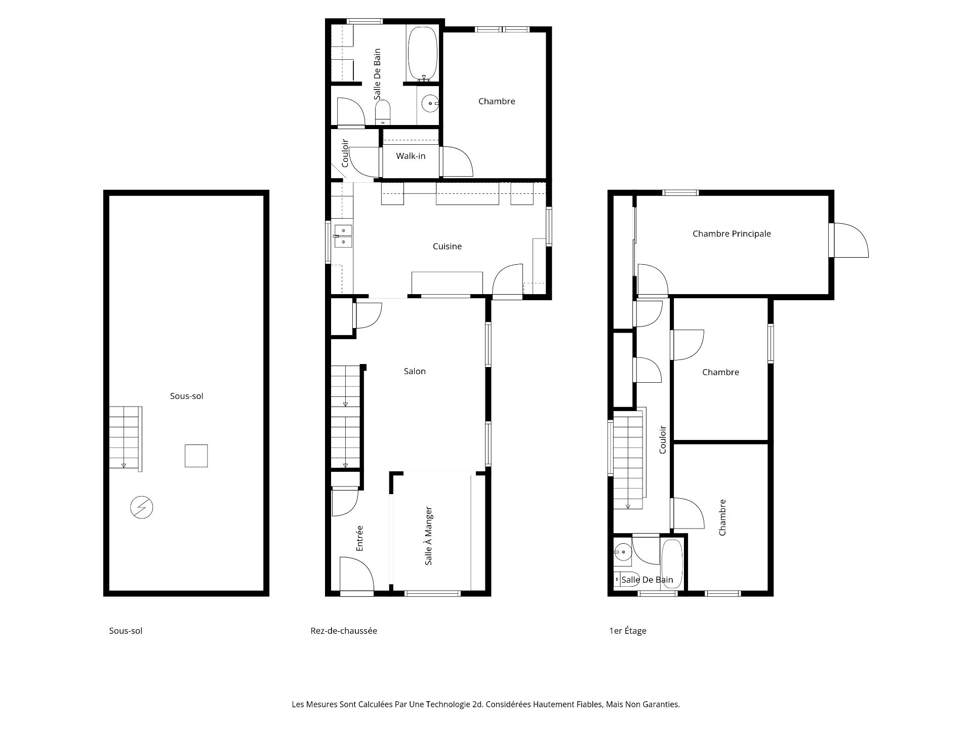
Charmante propriété de 3 chambres à coucher située dans le secteur de l'Île de Hull, Gatineau. Aire ouverte, 2 salles de bains, espace bureau, grande cuisine avec îlot, fenestration abondante, chambres de bonne grandeur, sous-sol non aménagé, thermopompe centrale et A/C mural. Garage simple détaché, entrée asphaltée et plusieurs espaces de stationnement. Secteur en demande, près des services essentiels, autobus, écoles et à moins de 5 minutes d'Ottawa.
Informations supplémentaires
24 Rue Ste-Hélène, Gatineau:- Maison à étage mansardé
- Secteur: Île de Hull
- Maison 1910
- 3 chambres à coucher
- 1 bureau
- 2 salles de bains
- Spacieux
- Fenestration abondante
- Grande cuisine avec îlot
- Chambres de bonne grandeur
- Thermopompe centrale (2022)
- A/C mural
- Chauffe-eau 2022 (location - 23$/mois)
- Sous-sol non aménagé
- Terrain clôturé
- Garage simple détaché
- Entrée asphaltée
- Plusieurs espaces de stationnement
- Secteur très familial
- Près des services essentiels, écoles, autobus
- 5 minutes d'Ottawa
* Vente sans garantie légale aux risques et périls de l'acheteur.
Particularités du bâtiment
Dimensions
6.77 M X 15.69 M
Fenêtres
PVC
Fondation
- Béton coulé
- Pierre
Revêtements
Fibre pressée
Sous-sol
- Non aménagé
- Bas (moins de 6 pieds)
Type de fenêtre
Manivelle
Toiture
- Bardeaux d'asphalte
- Membrane élastomère
Année de construction
1910
Particularités du terrain
Dimensions
15.24 M X 25.01 M
Superficie du terrain
4102 PC
Allée
- Asphalte
- Non pavée
Proximité
- Garderie/CPE
- Parc-espace vert
- Piste cyclable
- École primaire
- École secondaire
- Transport en commun
Stationnement
- Extérieur
- Au garage
Topographie
Plat
Détails des pièces
| Pièces | Niveaux | Dimensions | Revêtements |
|---|---|---|---|
| Hall d'entrée | 1er niveau/RDC | 10.9x4.10 P | Couvre-sol souple |
| Salle à manger | 1er niveau/RDC | 10.6x8.10 P | Couvre-sol souple |
| Salon | 1er niveau/RDC | 14.7x15.3 P | Couvre-sol souple |
| Cuisine | 1er niveau/RDC | 20.3x8.7 P | Plancher flottant |
| Salle de bains | 1er niveau/RDC | 9.5x9.3 P | Céramique |
| Rangement | 1er niveau/RDC | 4.9x3.10 P | Tapis |
| Bureau à domicile | 1er niveau/RDC | 13.4x10.6 P | Couvre-sol souple |
| Salle de bains | 2ième étage | 6.4x4.11 P | Céramique |
| Chambre à coucher principale | 2ième étage | 18.2x9.1 P | Plancher flottant |
| Chambre à coucher | 2ième étage | 11.9x8.9 P | Plancher flottant |
| Chambre à coucher | 2ième étage | 13.8x8.11 P | Plancher flottant |
| Autre | Sous-sol | 35.1x13.4 P | Béton |
Caractéristiques
Aménagement du terrain
- Clôturé
- Patio
Mode de chauffage
- Air soufflé
- Plinthes à convection
- Plinthes électriques
Approvisionnement en eau
Municipalité
Énergie pour le chauffage
- Électricité
- Gaz naturel
Équipement disponible
- Balcon privé
- Climatiseur mural
- Cour privée
- Thermopompe centrale
Garage
- Détaché
- Simple largeur
Système d'égouts
Municipal
Zonage
Résidentiel
Informations financières
Évaluation du terrain
256 200 $
Évaluation du bâtiment
152 300 $
Taxes municipales (2026)
3 478 $
Taxes scolaires (2025)
277 $
Dépenses annuelles
Énergie
3 520 $
Inclusions
Laveuse et sécheuse
Exclusions
Fournaise et chauffe-eau en location
































